1. No results to show.

As-Built Company

23

hires

23

hires

Contact for price

Sorry this pro can’t do your job, but we know other pros who can. Check them out
About
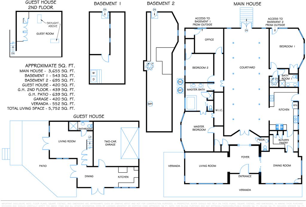
~~~~~~~~PLEASE READ BEFORE CONTACTING ME~~~~~~~~ My minimum to start is $750 ------- Click Read More ----> Why choose me? The primary cost is for the unparalleled efficiency I offer. I employ a modern 3D laser scanner for taking measurements, capable of creating an immense number of point clouds in a blink of an eye. This cutting-edge technology allows me to measure a 5,000 sq. ft. home in under 30 minutes, a feat impossible with traditional scanning methods. You'll receive your deliverables in PDF and DWG forms within only 5 business days, ensuring you save time and money. What I do provide - I provide as-built services, meaning I measure existing buildings to exact scale, translate it to a CAD drawing, and deliver it to you in PDF and DWG. - I provide highly accurate 3D laser-scanned floor plans for you to GIVE to your interior designer, contractor, architect, real estate agent, or engineer to work directly on. - I can provide minor CAD operating services. What I don't provide - I'm not a licensed architect/engineer so I can not stamp drawings. - I'm not a general contractor who can pull permits or build structures - I do not provide major drafting services for new construction or remodels
Overview

Hired 23 times

Background checked

2 employees

4 years in business

Business hours

This pro hasn't listed their business hours.

Payment methods

This pro accepts payments via Cash, Check, PayPal, Venmo, and Zelle.

Top Pro status

Top Pros are among the highest-rated, most popular professionals on Thumbtack.

Top Pro Icon

2023

Projects and media

7 photos

Projects and media

7 photos

Services offered
Project type description

New construction

Addition to existing structure

Remodel of a few rooms

Complete remodel

Professional services needed

Project consultation

Design drawings

Construction documents (blueprints)

Construction administration

Property type

Residential

Commercial

Reviews
Exceptional 5.0

13 reviews

5

100%

4

0%

3

0%

2

0%

1

0%

Customer photos

Customer photos

Showing 1-5 of 13 reviews
pro avatar
Shrikant K.

Aug 23, 2023

Hired on Thumbtack

Jonathan and his colleague helped me out to build the as-is plan for our property in Escondido, CA. He was responsive throughout the process and quality of work was immaculate. We had multiple revisions done to the plans built to accommodate the Escondido city’s requirements and he helped us out with everything. I’d highly recommend his company.

Details: Complete remodel • Residential • 2,500 - 3,000 sq ft

Architectural Services
pro avatar
Suraj R.

Aug 23, 2023

Hired on Thumbtack

Did the work I needed within 24-48 hours. Was timely, professional, excellent work quality. Will use again for my Southern California floor plan/site plan needs.

Details: Complete remodel • Commercial • 2,000 - 2,500 sq ft

Architectural Services
pro avatar
Johnny L.

Jul 24, 2023

Hired on Thumbtack

Mr Jonathan Chen,in the simplest of words,you are the best.me and my family are forever grateful for making our dream a reality with your professional work.you truly are a gift from god and we are blessed to have meet such an amazing,respectful,and honest man like your self.I’m so glad we chose you for our home project.your price was super fair and your work,well it speaks for its self.All Approved thanks to you and all your hard work.from the bottom of mine and my family’s hearts thank you so much we love you god bless!!!!

Details: Construction documents (blueprints) • New construction • Residential • More than 3,000 sq ft

Architectural Services
pro avatar
Ty E.

Apr 19, 2023

Hired on Thumbtack

Fantastic experience all around. Really impressed with how easy the process was and how quickly and great the work was done. Would totally recommend!!!

Details: Construction documents (blueprints) • Addition to existing structure • Residential • Less than 500 sq ft

Architectural Services
pro avatar
Tracy B.

Apr 18, 2023

Hired on Thumbtack

I was in the process of buying a new home and had a very limited time to capture a floorplan that I could then use for planning before the move in date. I reached out to As-Built a heard back immediately. Jonathan clearly guided me through the process and timeline, and set expectations he exceeded. He was prompt for our onsite meeting and quickly responded to all communications before and after the onsite visit. The technology he uses allows him to capture and create plans quickly, with excellent delivery, and at a cost lower than a typical architect or designer. I don't write a lot of reviews but honestly I was so impressed with As-Built I felt it was important.

Details: Design drawings • Remodel of a few rooms • Residential • Less than 500 sq ft

As-Built Company's reply
You're amazing! Thank you so much for your business. I look forward to working with you again.
Architectural Services
Credentials
Background Check

Jonathan Chen

  • Loading